Το κτήριο, σε ερειπιώδη κατάσταση σήμερα, έχει χαρακτηριστεί ως ιστορικό διατηρητέο μνημείο με τον περιβάλλοντα χώρο του, διότι αποτελεί εξαιρετικό δείγμα Αθηναϊκού σπιτιού, ενώ η διάσωσή του συμβάλλει στην ιστορία της Ελληνικής Αρχιτεκτονικής. Οι μελέτες για την αποκατάσταση του κτηρίου και του περιβάλλοντος χώρου του εκπονήθηκαν με πόρους του Υπουργείου Πολιτισμού. Το έργο χρηματοδοτείται από το Περιφερειακό Επιχειρησιακό Πρόγραμμα της Αττικής- ΕΣΠΑ 2021-2027 με 1.700.000 ευρώ.

Η Υπουργός Πολιτισμού Λίνα Μενδώνη δήλωσε: «Το Υπουργείο Πολιτισμού, στο πλαίσιο του σχεδιασμού και της υλοποίησης ενός συνολικού προγράμματος προστασίας και ανάδειξης κτηρίων -ιδιοκτησίας του Δημοσίου- στην Πλάκα, της γειτονιάς που έχει συνδεθεί περισσότερο από οποιαδήποτε άλλη, με τον χαρακτήρα του ιστορικού κέντρου της Αθήνας, προχωρά στην αποκατάσταση της “οικίας Κοκοβίκου” -όπως επικράτησε να λέγεται το κινηματογραφικό σπίτι του Αντωνάκη και της Ελενίτσας, από την ελληνική ταινία “Η δε γυνή να φοβήται τον άνδρα”- και τη μετατροπή της σε πολιτιστικό χώρο, προβολής ταινιών του ελληνικού κινηματογράφου. Η διάσωση, η αποκατάσταση και η επανάχρηση ενός κτηρίου-μνημείου, από τα ελάχιστα πλέον σωζόμενα “αθηναϊκά σπίτια” συμβάλλει στην ένταξή του στη σύγχρονη ζωή, ανασυγκροτεί την ιστορική εικόνα του με την ανασύσταση του βασικού συνοδού κτίσματος, μεγάλου μέρους της αυλής σε επαφή με το κτήριο και στην αποκατάσταση του μετώπου του οικοπέδου, με πολλαπλό όφελος για το ανάπτυγμα της οδού και τον ιστορικό τόπο της Πλάκας. Στόχος μας είναι η ενίσχυση του ιδιαίτερου ιστορικού και πολιτιστικού χαρακτήρα της Πλάκας, σεβόμενοι το μνημειακό της χαρακτήρα, αλλά και η ενίσχυση του τουριστικού ενδιαφέροντος για την Αθήνα, μέσα από την ανάδειξη νέων πολιτιστικών προορισμών. Μαζί με την Οικία Κωλέττη επί της Πολυγνώτου, το Σπίτι του Ελύτη, το κτήριο επί της Διοσκούρων 7, το οποίο προορίζεται να φιλοξενήσει το Μουσείο Καρόλου Κουν, την οικία Κωστή Παλαμά επί της Περιάνδρου, την «οικία Κοκοβίκου» επί της Τριπόδων, δημιουργούμε ένα πυρήνα κτηριακών υποδομών για πολιτιστικές χρήσεις, αναδεικνύοντας τις διαφορετικές εκφάνσεις και εποχές της ιστορίας των Αθηνών. Ευχαριστώ τον Περιφερειάρχη Αττικής Νίκο Χαρδαλιά για την εξαιρετικά γόνιμη συνεργασία μας για την ενίσχυση και αναβάθμιση της πολιτιστικής φυσιογνωμίας της πρωτεύουσας και της Αττικής».

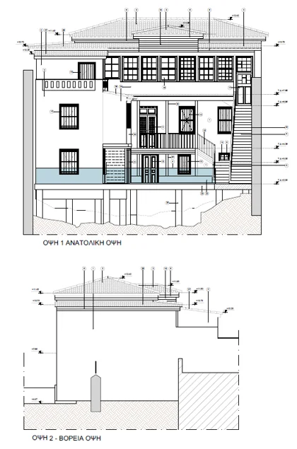
Σύμφωνα με την εγκριθείσα μελέτη, αποκαθίσταται η ιστορική εικόνα του κτηρίου, αναδεικνύεται ο μνημειακός του χαρακτήρας, ενώ διασφαλίζεται η καθολική προσβασιμότητα. Εκτελούνται εργασίες αποκατάστασης του κελύφους και ανασύστασης του κυρίως προσκτίσματος–συνοδού διώροφου κτηρίου, ώστε να αποκατασταθεί η τυπολογία της Αθηναϊκής αυλής, συνδυαστικά με την διαχείριση του μετώπου της οδού Τριπόδων, καθώς και της λειτουργικής αναβάθμισης του κτηρίου για τη νέα του χρήση. Ταυτόχρονα, συντηρούνται τα αρχαία αρχιτεκτονικά λείψανα που έχουν εντοπισθεί στο εσωτερικό του κτηρίου και στον αύλειο χώρο του, ενώ παράλληλα, διασφαλίζεται η απρόσκοπτη θέασή τους.


Το κτήριο, συνολικής επιφανείας 266 τ.μ., είναι τριώροφο με ξύλινο συνεχές χαγιάτι, σε όλες τις στάθμες, ανταποκρινόμενο στα πρότυπα της πρώιμης οθωνικής περιόδου. Αποτελεί μέρος συγκροτήματος με άλλοτε συνοδά κτήρια και εσωτερική αυλή, τυπολογία που επικράτησε στα χρόνια της Οθωμανοκρατίας, στην Πλάκα. Η παρουσία του κυρίως κτηρίου μαζί με τα προσκτίσματά του, τεκμηριώνεται την περίοδο 1836-1837. Αποτελεί παλίμψηστο λόγω της παρουσίας σωζόμενων ορατών αρχαιοτήτων, σε στάθμη χαμηλότερη από το δάπεδο του ισογείου, τόσο εντός του κτηρίου στην κατώτερη στάθμη του, όσο και στον άλλοτε αύλειο χώρο. Έχει δεχτεί σειρά επεμβάσεων και τροποποιήσεων λόγω μεταλλαγής του αύλειου χώρου του (καθαιρέσεις συνοδών κτισμάτων και μανδρότοιχου), διενέργειας ανασκαφικής έρευνας σε ολόκληρο σχεδόν τον χώρο και στο εσωτερικό του κτηρίου, και συνολικής επισκευής. Η μορφή του ακινήτου διασώζεται σε τεκμήρια εποχής.


