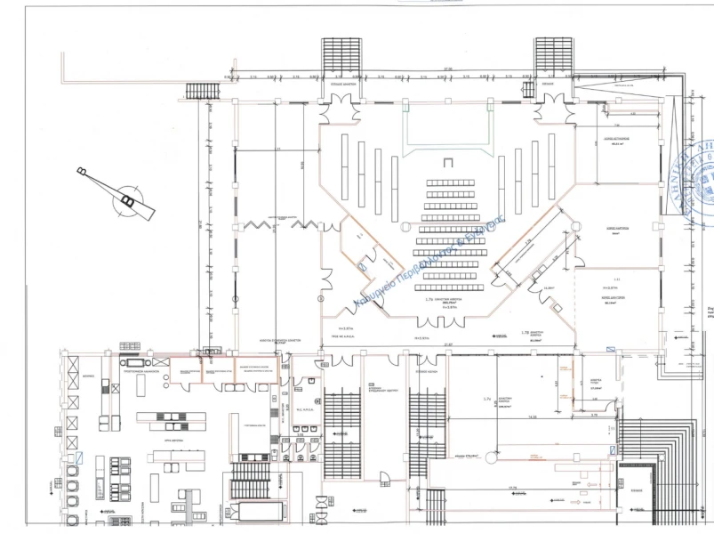
Η αίθουσα συνεδριάσεων που θα φιλοξενήσει τη διαδικασία θα βρίσκεται στο Συνεδριακό Κέντρο του Πανεπιστημίου Θεσσαλίας, στο συγκρότημα ΓΑΙΟΠΟΛΙΣ (πρώην ΤΕΙ Λάρισας). Η κύρια αίθουσα του Τριμελούς Εφετείου Κακουργημάτων Λάρισας, όπου θα τοποθετηθεί η έδρα του δικαστηρίου, τα έδρανα των δικηγόρων και οι θέσεις των κατηγορουμένων, έχει εμβαδόν 283,75 τ.μ.. Παράλληλα, προβλέφθηκαν επιπρόσθετοι χώροι για την εξυπηρέτηση του κοινού, των δημοσιογράφων και των μαρτύρων.
Συγκεκριμένα, ορίστηκε:
- Ως δευτερεύουσα αίθουσα συνεδριάσεων ο κύριος χώρος υποδοχής του Συνεδριακού Κέντρου, εμβαδού 109,57 τ.μ., όπου θα τοποθετηθούν θέσεις ακροατηρίου με οθόνες παρακολούθησης.
- Επιπλέον, θα αξιοποιηθεί και ο χώρος του φουαγιέ, εμβαδού 82,58 τ.μ., ο οποίος επίσης θα εξοπλιστεί με οθόνες για τη ζωντανή μετάδοση της διαδικασίας.
Η κάτοψη της αίθουσας που συνοδεύει την πράξη παρουσιάζει αναλυτικά τη χωροθέτηση, με ειδικά διαμορφωμένους χώρους για την αστυνομία, τους μάρτυρες, τους δικηγόρους και τα μέσα ενημέρωσης.

Ειδήσεις Σήμερα
- Σοκ στον κόσμο του ποδοσφαίρου: 18χρονος τερματοφύλακας από τη Σενεγάλη βρέθηκε νεκρός – Τον απήγαγαν ψεύτικοι μάνατζερ
- Δημοσκόπηση Marc: Στις 16,5 μονάδες το προβάδισμα της ΝΔ από το ΠΑΣΟΚ – Ποιος είναι καταλληλότερος Πρωθυπουργός μεταξύ Μητσοτάκη και Τσίπρα
- Τραμπ: «Δεν πιστεύω ότι η Ουκρανία θα κερδίσει τον πόλεμο» – Τι είπε για Αυστραλία και Κίνα
- Βουλή: Κατατέθηκε η τροπολογία για το Μνημείο του Άγνωστου Στρατιώτη – Τι προβλέπει
- Σοκ στην Ολλανδία: 82χρονη ξυλοκοπήθηκε μέχρι λιποθυμίας – Προσπάθησε να σταματήσει επιβάτη χωρίς εισιτήριο στο μετρό (βίντεο)
- Αλεξανδρούπολη: Πρόστιμο 800 ευρώ για τον 60χρονο με τα παράνομα εμβόλια κατά της ευλογιάς των προβάτων